Nieuwbouw 2 slpk appartement met ruim zuidgericht terras (30m2) aan de Vaart
Verhuurd Beernem Fortstraat 1 1.03
Dit energiezuinig nieuwbouwappartement is gelegen aan de Vaart te Beernem met vlotte verbindingen naar het station van Beernem, op- en afrit van de autostrade, fietsen langs de Vaart tot in Gent of Brugge, op slechts 15 minuten rijden van Brugge...
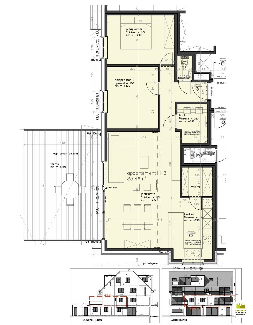
Het appartement is gelegen op de eerste verdieping en heeft volgende indeling:
Inkom met gastentoilet, lichtrijke leefruimte met open keuken. De keuken is uitgerust met een ingebouwde frigo, vaatwas, kookplaat, dampkap en spoelbak. Palend aan de keuken bevindt zich nog een praktische berging. Vanuit de leefruimte is er toegang tot het grote zuidgerichte terras. Het terras meet 30m2. De badkamer is voorzien van een dubbele lavabo en inloopdouche en zijn er 2 slaapkamers.
Inclusief 1 parkeerplaats in de ondergrondse garage, er is ook een gemeenschappelijke fietsenberging. De verlichting en gordijnen zijn reeds voorzien.
Huurprijs appartement: 900 euro per maand
Syndic: 70 euro per maand
Wenst u een bezoek aan deze eigendom? Vraag uw bezoek dan snel aan via onze eigen website ... (www.vastgoedwm.be) en klik onder 'Te huur' door op het pand dat u wenst te bezoeken. Daar zal dan een knop staan 'Bezoekaanvraag'. Vanaf wij deze aanvraag hebben ontvangen, contacteren wij u zo spoedig mogelijk voor een bezoek. Lees meer Verberg
Het appartement is gelegen op de eerste verdieping en heeft volgende indeling:
Inkom met gastentoilet, lichtrijke leefruimte met open keuken. De keuken is uitgerust met een ingebouwde frigo, vaatwas, kookplaat, dampkap en spoelbak. Palend aan de keuken bevindt zich nog een praktische berging. Vanuit de leefruimte is er toegang tot het grote zuidgerichte terras. Het terras meet 30m2. De badkamer is voorzien van een dubbele lavabo en inloopdouche en zijn er 2 slaapkamers.
Inclusief 1 parkeerplaats in de ondergrondse garage, er is ook een gemeenschappelijke fietsenberging. De verlichting en gordijnen zijn reeds voorzien.
Huurprijs appartement: 900 euro per maand
Syndic: 70 euro per maand
Wenst u een bezoek aan deze eigendom? Vraag uw bezoek dan snel aan via onze eigen website ... (www.vastgoedwm.be) en klik onder 'Te huur' door op het pand dat u wenst te bezoeken. Daar zal dan een knop staan 'Bezoekaanvraag'. Vanaf wij deze aanvraag hebben ontvangen, contacteren wij u zo spoedig mogelijk voor een bezoek. Lees meer Verberg
