Prachtig lichtrijk appartement met 2 mooie terrassen in centrum
Verhuurd Wingene Zandbergstraat 36 201
Prachtig lichtrijk energiezuinig appartement gelegen in de residentie Zandbergmolen op de bovenste verdieping.
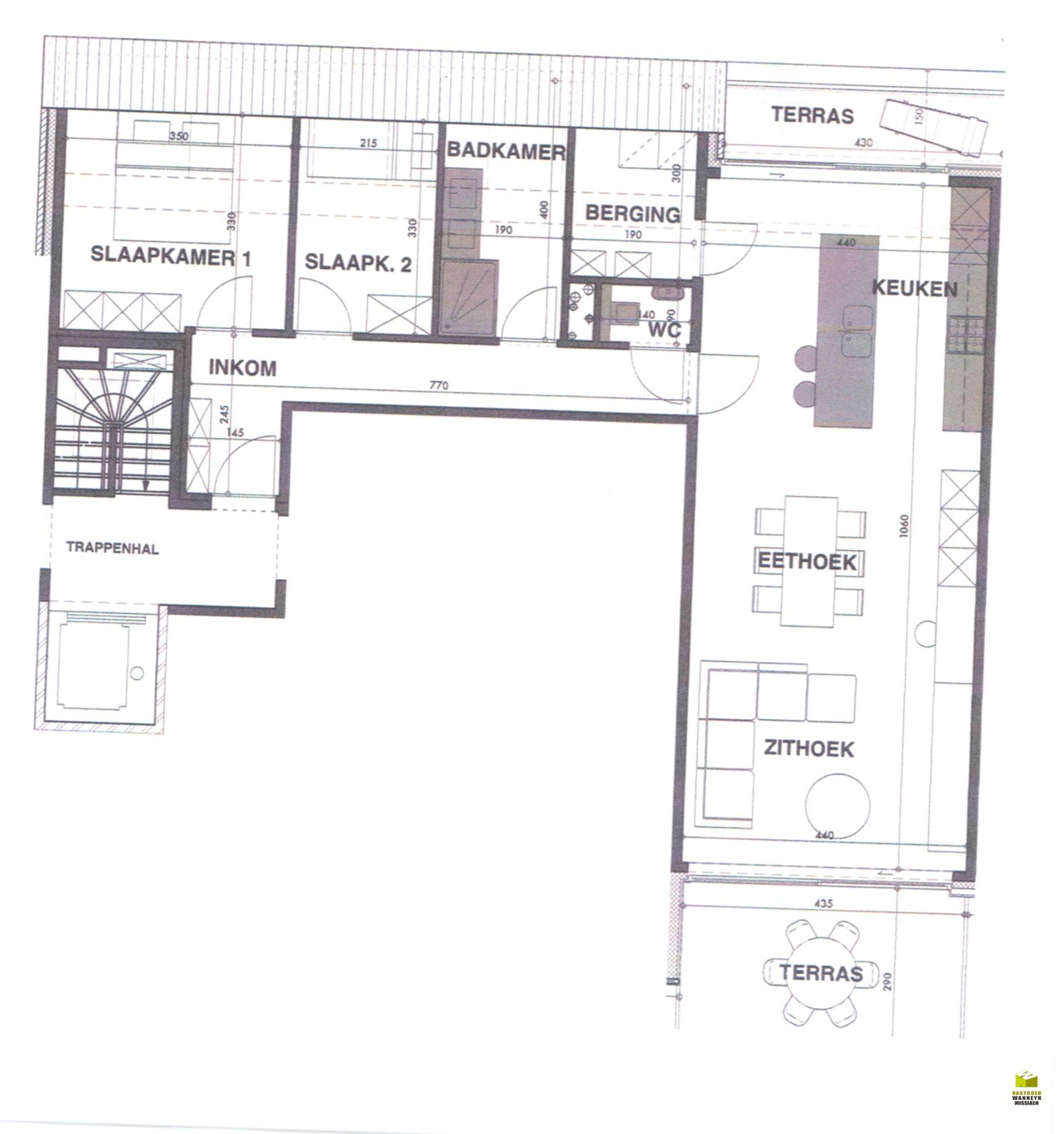
Indeling: inkomhal, 2 slaapkamers (11,55m2 en 7m2), badkamer met ligbad, douche en dubbele lavabo, apart toilet, ruime lichtrijke living (46,6m2) met open ingerichte keuken (combi oven, vaatwas, kookplaat en frigo), berging/wasplaats, 2 terrassen (12,59m2 en 6,45m2). De totale oppervlakte van het appartement is 118m2 (incl. terrassen).
In de slaapkamers en in de living is er parketvloer aanwezig.
Bij het appartement is er een bovengrondse garage met berging. De garage is voorzien van een geautomatiseerde sectionale poort. De huurprijs is 630 euro + 50 euro voor de garage + 50 euro syndic.
Gunstige ligging: in het centrum van Wingene, nabij openbaar vervoer, scholen, bakker,...
Het appartement is volledig geschilderd!
Wenst U verdere info of een bezoek?
Contacteer ons op 050/70 34 35
Indeling: inkomhal, 2 slaapkamers (11,55m2 en 7m2), badkamer met ligbad, douche en dubbele lavabo, apart toilet, ruime lichtrijke living (46,6m2) met open ingerichte keuken (combi oven, vaatwas, kookplaat en frigo), berging/wasplaats, 2 terrassen (12,59m2 en 6,45m2). De totale oppervlakte van het appartement is 118m2 (incl. terrassen).
In de slaapkamers en in de living is er parketvloer aanwezig.
Bij het appartement is er een bovengrondse garage met berging. De garage is voorzien van een geautomatiseerde sectionale poort. De huurprijs is 630 euro + 50 euro voor de garage + 50 euro syndic.
Gunstige ligging: in het centrum van Wingene, nabij openbaar vervoer, scholen, bakker,...
Het appartement is volledig geschilderd!
Wenst U verdere info of een bezoek?
Contacteer ons op 050/70 34 35
