Handelspand met 5 aparte burelen en 8 parkeerplaatsen - Pop up verhuur (1 jaar) is ook mogelijk!
Verhuurd Wingene Oude Bruggestraat 3
Geschikt voor een kantoor, winkel, (groeps)praktijk, personal training, ..
Ook geschikt voor iemand die voor een korte termijn een oplossing zoekt (bv eigen zaak aan het renoveren is) of ideaal als kleinschalig bedrijfsverzamelgebouw, dat is een (kantoor)gebouw waarin meerdere bedrijven gehuisvest zijn. Bijvoorbeeld een mix van startende bedrijven die hier een kantoor huren. Wil je een korte huurtermijn? Pop up verhuur (1 jaar) is ook mogelijk!
Ligging: gelegen in het centrum van Wingene, op een commerciële ligging met uitstekende visibiliteit
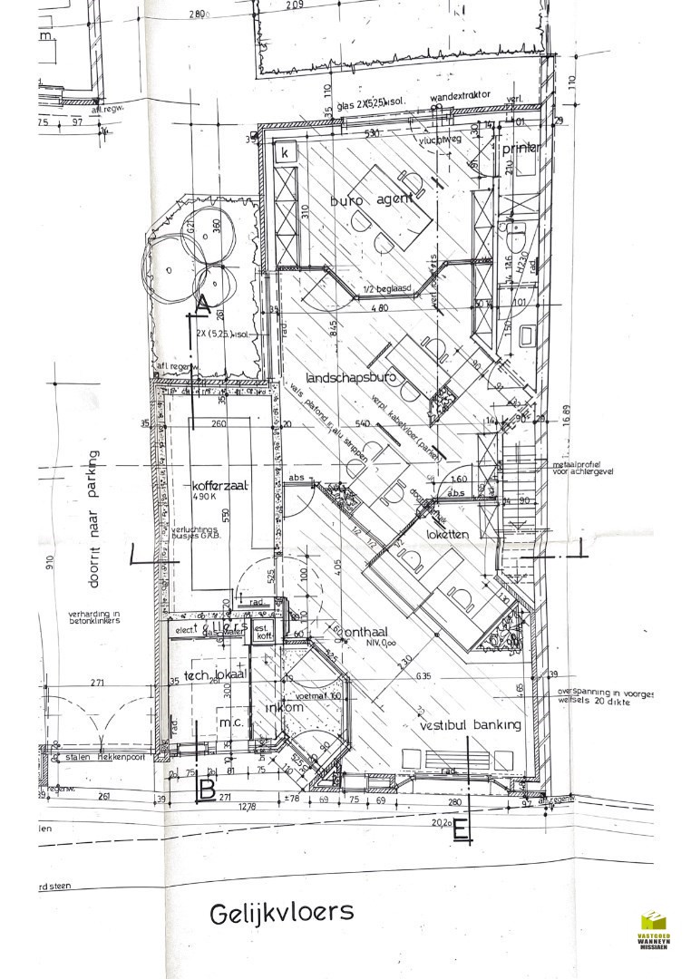
De totale bruikbare vloeroppervlakte bedraagt 249 m2
Huidige indeling: inkomhal, vooraan is er een apart kantoor/vestiaire/archief en de ontvangstruimte met wachthoek. Verder zijn er nog 2 afzonderlijke burelen, allemaal uitgerust met airco. Achteraan bevindt zich het sanitair gedeelte (apart toilet). Er is ook een kluizenzaal en een technische ruimte. Op de eerste verdieping zijn er nog eens 2 afzonderlijke burelen en een dienstkeuken. Er is nog een apart toilet. Via een schuiftrap is de ... zolder bereikbaar.
Onroerende voorheffing ten laste van de huurder.
Voor meer info of bezoek: 050/70 34 35 (jolien) - jolien@vastgoedwm.be
Lees meer Verberg
Ook geschikt voor iemand die voor een korte termijn een oplossing zoekt (bv eigen zaak aan het renoveren is) of ideaal als kleinschalig bedrijfsverzamelgebouw, dat is een (kantoor)gebouw waarin meerdere bedrijven gehuisvest zijn. Bijvoorbeeld een mix van startende bedrijven die hier een kantoor huren. Wil je een korte huurtermijn? Pop up verhuur (1 jaar) is ook mogelijk!
Ligging: gelegen in het centrum van Wingene, op een commerciële ligging met uitstekende visibiliteit
De totale bruikbare vloeroppervlakte bedraagt 249 m2
Huidige indeling: inkomhal, vooraan is er een apart kantoor/vestiaire/archief en de ontvangstruimte met wachthoek. Verder zijn er nog 2 afzonderlijke burelen, allemaal uitgerust met airco. Achteraan bevindt zich het sanitair gedeelte (apart toilet). Er is ook een kluizenzaal en een technische ruimte. Op de eerste verdieping zijn er nog eens 2 afzonderlijke burelen en een dienstkeuken. Er is nog een apart toilet. Via een schuiftrap is de ... zolder bereikbaar.
Onroerende voorheffing ten laste van de huurder.
Voor meer info of bezoek: 050/70 34 35 (jolien) - jolien@vastgoedwm.be
Lees meer Verberg
