Instapklaar appartement met 2 slaapkamers en terras in het centrum van Wingene
Verkocht Wingene Beernemstraat 2 B 101
Alle centrumfuncties zijn binnen een straal van 500m gelegen (school, winkels, bakker, openbaar vervoer ect).
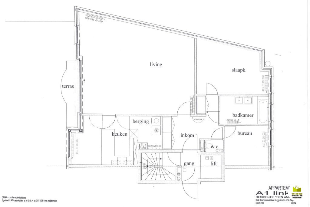
Het appartement gelegen op de eerste verdieping heeft een bewoonbare oppervlakte van 108 m2 en is toegankelijk met een lift.
De inkomhal is ingericht met praktische ingebouwde vestiaire en linnenkast, ook hier is het gastentoilet. De ruime en lichtrijke leefruimte grenst aan het zuid west gericht terras met aanpalend de keuken. De keuken is voldoende ruim om in een tafel voor 4 in te zetten, qua toestellen is er ook alles wat je nodig hebt (oven, microgolf, vaatwasser, frigo), via een kastdeur in de keuken is nog toegang tot de aparte praktische berging. In deze berging is ook voorziening voor wasmachine, droogkast, diepvriezer ect. De badkamer is ingericht met een ligbad en dubbele lavabo. Het grote voordeel is dat er een dagraam is voorzien, in de meeste appartementen wordt een badkamer geventileerd door een afzuigsysteem. Het is altijd fijn om verse lucht op een natuurlijke manier binnen te brengen in een badkamer. Er ... zijn 2 slaapkamers, ze meten respectievelijk 14 m2 en 9 m2. In de kelderverdieping is er nog een ruime private garagebox, deze is extra diep, daardoor kan je in de winter bv je terrasmeubels stockeren. De garagebox zelf is vlot bereikbaar, via een eenvoudige inrit, geen gekke bochten of smalle doorgangen. De garagebox kan bij aangekocht worden voor 15.000 euro, het is niet verplicht.
Pluspunten :
+ heel ruim en instapklaar
+ goed gekeurde elektriciteit (tot 2050)
+ direct verhuurbaar
+ volledig vakkundig met vlies behangen
+ inbouwkasten
Dit appartement is ideaal gelegen voor wie op zoek is naar een ruim appartement op centrumligging.
Of voor iemand die wilt investeren, het appartement is verhuurbaar voor 750 EUR /md. (excl syndicuskosten)
Bekijk het filmpje: https://www.youtube.com/shorts/4BuPGj07E60
Meer info of een bezoek ter plaatse? Vraag naar Jolien/Louise op 050 70 34 35 Lees meer Verberg
Het appartement gelegen op de eerste verdieping heeft een bewoonbare oppervlakte van 108 m2 en is toegankelijk met een lift.
De inkomhal is ingericht met praktische ingebouwde vestiaire en linnenkast, ook hier is het gastentoilet. De ruime en lichtrijke leefruimte grenst aan het zuid west gericht terras met aanpalend de keuken. De keuken is voldoende ruim om in een tafel voor 4 in te zetten, qua toestellen is er ook alles wat je nodig hebt (oven, microgolf, vaatwasser, frigo), via een kastdeur in de keuken is nog toegang tot de aparte praktische berging. In deze berging is ook voorziening voor wasmachine, droogkast, diepvriezer ect. De badkamer is ingericht met een ligbad en dubbele lavabo. Het grote voordeel is dat er een dagraam is voorzien, in de meeste appartementen wordt een badkamer geventileerd door een afzuigsysteem. Het is altijd fijn om verse lucht op een natuurlijke manier binnen te brengen in een badkamer. Er ... zijn 2 slaapkamers, ze meten respectievelijk 14 m2 en 9 m2. In de kelderverdieping is er nog een ruime private garagebox, deze is extra diep, daardoor kan je in de winter bv je terrasmeubels stockeren. De garagebox zelf is vlot bereikbaar, via een eenvoudige inrit, geen gekke bochten of smalle doorgangen. De garagebox kan bij aangekocht worden voor 15.000 euro, het is niet verplicht.
Pluspunten :
+ heel ruim en instapklaar
+ goed gekeurde elektriciteit (tot 2050)
+ direct verhuurbaar
+ volledig vakkundig met vlies behangen
+ inbouwkasten
Dit appartement is ideaal gelegen voor wie op zoek is naar een ruim appartement op centrumligging.
Of voor iemand die wilt investeren, het appartement is verhuurbaar voor 750 EUR /md. (excl syndicuskosten)
Bekijk het filmpje: https://www.youtube.com/shorts/4BuPGj07E60
Meer info of een bezoek ter plaatse? Vraag naar Jolien/Louise op 050 70 34 35 Lees meer Verberg
