Landelijk gelegen eigendom met bijgebouwen en vergunning voor nieuwbouwwoning op net geen 5000m2
Verkocht Wingene Kleine Veldstraat 5
Uiterst rustig gelegen eigendom te St-Jan, toegang naar het terrein via een doodlopende straat.
U woont er temidden de velden in alle rust en privacy, doch op 10 minuten van de E-40 Beernem.
Door de aanwezigheid van verschillende bijgebouwen, ook ideaal voor een kleine zelfstandige (opslag)!
Algemene staat:
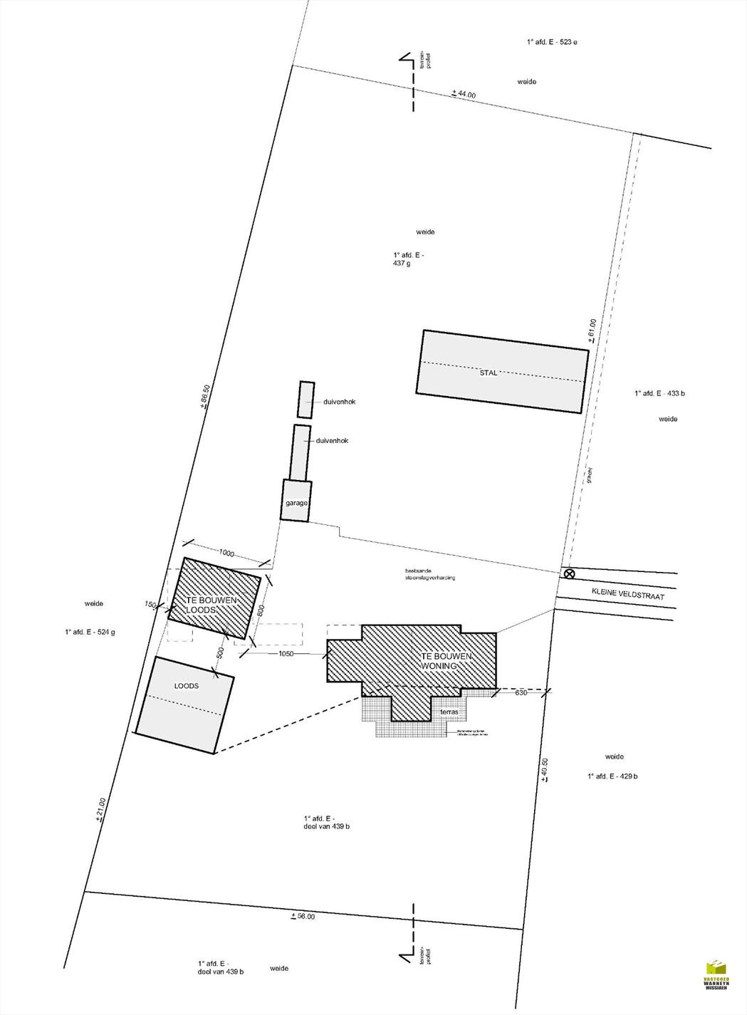
De woning is in opbouw, er is nieuw gebouwd tot de 1ste verdieping in ruwbouw volgens een duurzaam bouwsysteem met EPS bouwblokken (*). Er is een goedgekeurde bouwvergunning, waarbij het de koper vrij staat om eventuele aanpassingen te doen aan het vergunde bouwplan op voorwaarde dat de woning water- en winddicht is uiterlijk 22/09/2020, uiteraard rekeninghoudend met de wetgeving op agrarisch gelegen eigendommen. Het volume van het huidig bouwplan bedraagt 964m3, de woning mag uitgebreid worden tot 1.000 m3. Er is ook een vergunning voor het bouwen van een nieuwe loods/bijgebouw (enkel opslag!) met een oppervlakte van 80m2 (10m x 8m) en een kroonlijsthoogte van 2,85m en een nokhoogte van 5,8m. De bestaande bijgebouwen mogen ... verbouwd worden binnen hun bestaand volume en kunnen bestemd worden voor opslag.
Oppervlakte:
Totaal terrein: 4.971 m2
mogelijk te bouwen bijgebouw van 10 m x 8 m (vloerplaat reeds aanwezig)
bestaande loods - bebouwde oppervlakte: (+/-) 10 m x 9 m
bestaande varkensstal - bebouwde oppervlakte: (+/-) 8 m x 21 m
Voordelen:
- alles vrij van pacht
- nieuw toegangshek
- nieuwe poort in bestaande loods
Geen EPC van toepassing
(*) ter info: De blokken worden op legoliserende wijze opgestapeld en dienen als bekisting waarna deze worden gevuld met beton. In plaats van de bekisting te verwijderen op het moment dat het beton is uitgehard blijft de bekisting zittien. EPS isoleert enorm goed en weegt niet veel, dit draagt bij een snellere bouwtijd. Door dit bouwsysteem te gebruiken kan je een energie-neutrale woning bouwen.
Voor meer info of bezoek: 050/70 34 35
Lees meer Verberg
U woont er temidden de velden in alle rust en privacy, doch op 10 minuten van de E-40 Beernem.
Door de aanwezigheid van verschillende bijgebouwen, ook ideaal voor een kleine zelfstandige (opslag)!
Algemene staat:
De woning is in opbouw, er is nieuw gebouwd tot de 1ste verdieping in ruwbouw volgens een duurzaam bouwsysteem met EPS bouwblokken (*). Er is een goedgekeurde bouwvergunning, waarbij het de koper vrij staat om eventuele aanpassingen te doen aan het vergunde bouwplan op voorwaarde dat de woning water- en winddicht is uiterlijk 22/09/2020, uiteraard rekeninghoudend met de wetgeving op agrarisch gelegen eigendommen. Het volume van het huidig bouwplan bedraagt 964m3, de woning mag uitgebreid worden tot 1.000 m3. Er is ook een vergunning voor het bouwen van een nieuwe loods/bijgebouw (enkel opslag!) met een oppervlakte van 80m2 (10m x 8m) en een kroonlijsthoogte van 2,85m en een nokhoogte van 5,8m. De bestaande bijgebouwen mogen ... verbouwd worden binnen hun bestaand volume en kunnen bestemd worden voor opslag.
Oppervlakte:
Totaal terrein: 4.971 m2
mogelijk te bouwen bijgebouw van 10 m x 8 m (vloerplaat reeds aanwezig)
bestaande loods - bebouwde oppervlakte: (+/-) 10 m x 9 m
bestaande varkensstal - bebouwde oppervlakte: (+/-) 8 m x 21 m
Voordelen:
- alles vrij van pacht
- nieuw toegangshek
- nieuwe poort in bestaande loods
Geen EPC van toepassing
(*) ter info: De blokken worden op legoliserende wijze opgestapeld en dienen als bekisting waarna deze worden gevuld met beton. In plaats van de bekisting te verwijderen op het moment dat het beton is uitgehard blijft de bekisting zittien. EPS isoleert enorm goed en weegt niet veel, dit draagt bij een snellere bouwtijd. Door dit bouwsysteem te gebruiken kan je een energie-neutrale woning bouwen.
Voor meer info of bezoek: 050/70 34 35
Lees meer Verberg
