Arnaud I - nieuwbouw commerciële ruimte (117m2) centrum Wingene
Verkocht Wingene Oude Bruggestraat 20 000
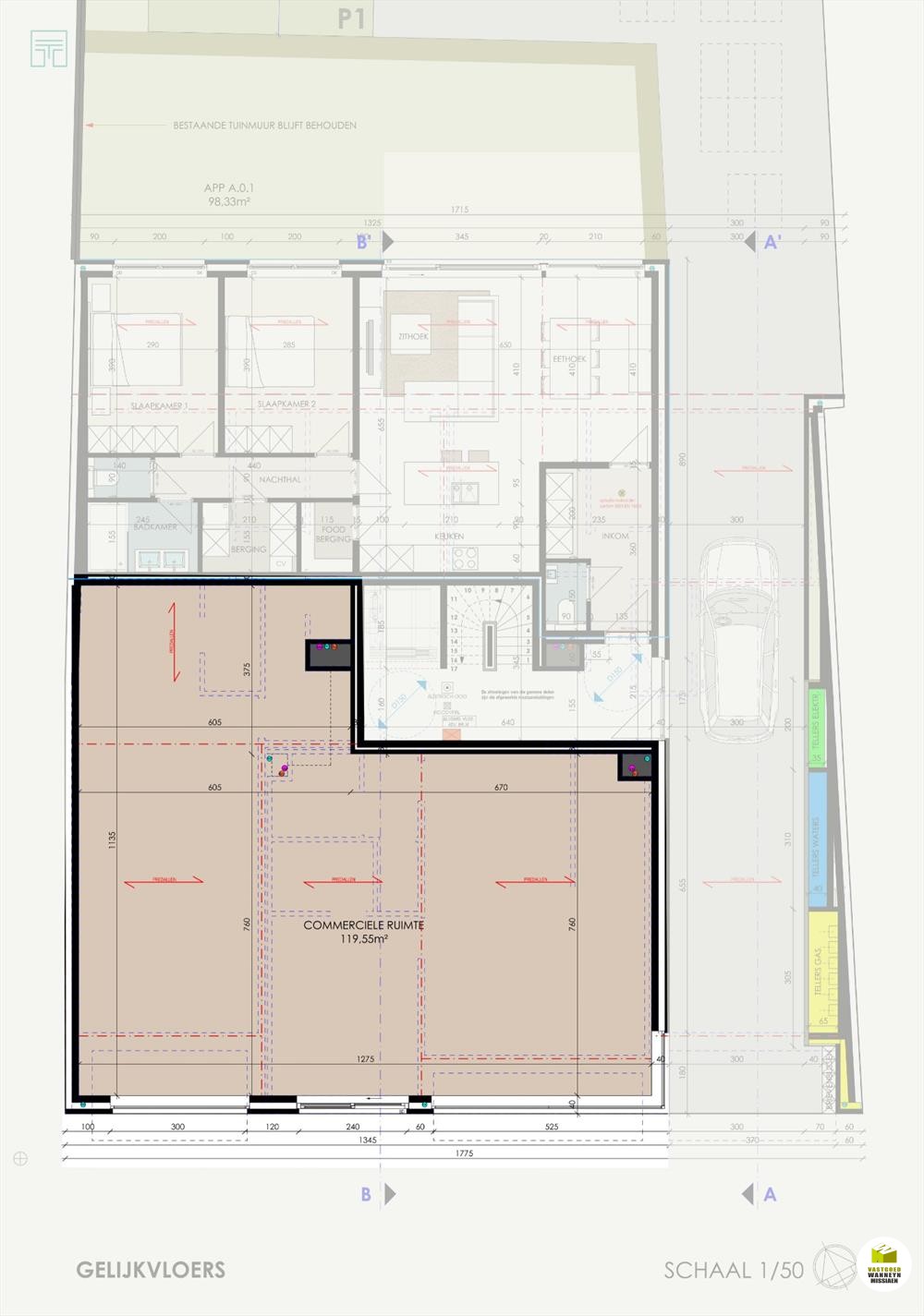
Ligging:
centrum Wingene, gelegen voor het voormalig postgebouw, op wandelafstand van de markt, het Gemeentehuis van Wingene.
Links en rechts, openbare parking langs de straat, dus nooit parkeerproblemen.
Beschrijving van het handelspand:
individuele inkomdeur met directe toegang tot 1 grote open ruimte van 117m2. De vitrine is 13m lang, de visibiliteit wordt versterkt door het grote hoekvenster.
De ramen zijn van boven tot beneden waardoor er altijd aangenaam veel lichtinval is in de ruimte.
Afwerking:
Deze ruimte wordt in zijn huidige staat verkocht, casco afwerking (water en winddicht) met als gevolg dat de indeling en de inrichting nog volledig vrij te bepalen is!
Interessant:
+ vloerverwarming op aardgas
+ BTW slechts op de constructiewaarde en registratierechten op de grond (10%)
+ beperkte gemeenschappelijke maandelijkse syndicbijdrage (beperkte deelname in kosten voor de lift en andere gemene delen, doordat het handelsgelijkvloers beperkt gebruik maakt van deze gemene delen)
Er is ook de mogelijkheid ... tot het aankopen van niet overdekte parkeerplaatsen achteraan het gebouw (15.000 EUR excl. kosten/staanplaats). Er is nog één garagebox te koop voor 26.000 EUR (excl. kosten)
Wordt 2019 Uw jaar? Ga voor je eigen zaak! Of durf te gaan voor de uitbreiding van je zaak!
Indien er verder nog vragen zijn, aarzel dan niet en contacteer ons op het nummer 050/70 34 35 Lees meer Verberg
centrum Wingene, gelegen voor het voormalig postgebouw, op wandelafstand van de markt, het Gemeentehuis van Wingene.
Links en rechts, openbare parking langs de straat, dus nooit parkeerproblemen.
Beschrijving van het handelspand:
individuele inkomdeur met directe toegang tot 1 grote open ruimte van 117m2. De vitrine is 13m lang, de visibiliteit wordt versterkt door het grote hoekvenster.
De ramen zijn van boven tot beneden waardoor er altijd aangenaam veel lichtinval is in de ruimte.
Afwerking:
Deze ruimte wordt in zijn huidige staat verkocht, casco afwerking (water en winddicht) met als gevolg dat de indeling en de inrichting nog volledig vrij te bepalen is!
Interessant:
+ vloerverwarming op aardgas
+ BTW slechts op de constructiewaarde en registratierechten op de grond (10%)
+ beperkte gemeenschappelijke maandelijkse syndicbijdrage (beperkte deelname in kosten voor de lift en andere gemene delen, doordat het handelsgelijkvloers beperkt gebruik maakt van deze gemene delen)
Er is ook de mogelijkheid ... tot het aankopen van niet overdekte parkeerplaatsen achteraan het gebouw (15.000 EUR excl. kosten/staanplaats). Er is nog één garagebox te koop voor 26.000 EUR (excl. kosten)
Wordt 2019 Uw jaar? Ga voor je eigen zaak! Of durf te gaan voor de uitbreiding van je zaak!
Indien er verder nog vragen zijn, aarzel dan niet en contacteer ons op het nummer 050/70 34 35 Lees meer Verberg
