Perceel bouwgrond van 602 m2 geschikt voor VRIJSTAANDE bebouwing in centrum Wingene
Vraagprijs
Gelegen in een residentiële omgeving in Wingene centrum, op wandelafstand van het marktplein, school, opvang, grootwarenhuis,..
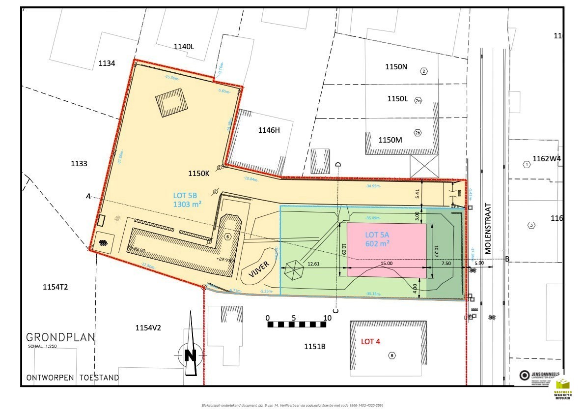
De bouwgrond bevindt zich aan de voorkant van het perceel en loopt tot aan de vijver, (dus het prieeltje hoort nog bij de bouwgrond)
De oprit en het achterliggend huis met parking hoort er niet bij. Dit is ook te koop (zie onderaan in de tekst)
Het is geen verplichting om de beide samen aan te kopen, en er is ook geen bouwverplichting op dit perceel bouwgrond.
De totale breedte van het perceel bouwgrond bedraagt:
17,34 m
en de diepte van het perceel bouwgrond bedraagt:
35,15 m
Er zijn verkavelingvoorschriften van toepassing:
+ Voorbouwlijn op 7,5 meter vanuit de rooilijn
+ maximale bouwdiepte gelijkvloers max. 15 meter
+ maximale bouwbreedte gelijkvloers 10 meter
--> dus een bouwkader van 150 m2
+ 2 bouwlagen en een dak toegelaten (hellende dakvorm)
+ carport mogelijk
+ bijgebouw van 40 m2 is toegelaten
Tussen de foto's is het verkavelingsplan te zien.
Het lot 5A wordt ... afgebeeld in de groene zone,
de roze zone is het maximale bouwkader, binnen die aangeduide zone kan er gebouwd worden.
Het huis achterliggend, staat ook te koop op een terrein van 1303 m2 voor 299.000 EUR.
De bestaande woning kan behouden blijven volgens de huidige inplanting met een eventuele uitbreiding tot 200m2. In geval van sloop van de bestaande woning en heropbouw op gewijzigde plaats dient er een minimale afstand van 4m ten opzichte van de perceelsgrenzen bewaard blijven. Er kan nog een bijgebouw worden opgericht van 40m2.
Daardoor is deze eigendom bijzonder geschikt voor bv. kangoeroewonen.
Voor meer info bel 050/70.35.34 (Jolien/Louise)
Lees meer Verberg
De bouwgrond bevindt zich aan de voorkant van het perceel en loopt tot aan de vijver, (dus het prieeltje hoort nog bij de bouwgrond)
De oprit en het achterliggend huis met parking hoort er niet bij. Dit is ook te koop (zie onderaan in de tekst)
Het is geen verplichting om de beide samen aan te kopen, en er is ook geen bouwverplichting op dit perceel bouwgrond.
De totale breedte van het perceel bouwgrond bedraagt:
17,34 m
en de diepte van het perceel bouwgrond bedraagt:
35,15 m
Er zijn verkavelingvoorschriften van toepassing:
+ Voorbouwlijn op 7,5 meter vanuit de rooilijn
+ maximale bouwdiepte gelijkvloers max. 15 meter
+ maximale bouwbreedte gelijkvloers 10 meter
--> dus een bouwkader van 150 m2
+ 2 bouwlagen en een dak toegelaten (hellende dakvorm)
+ carport mogelijk
+ bijgebouw van 40 m2 is toegelaten
Tussen de foto's is het verkavelingsplan te zien.
Het lot 5A wordt ... afgebeeld in de groene zone,
de roze zone is het maximale bouwkader, binnen die aangeduide zone kan er gebouwd worden.
Het huis achterliggend, staat ook te koop op een terrein van 1303 m2 voor 299.000 EUR.
De bestaande woning kan behouden blijven volgens de huidige inplanting met een eventuele uitbreiding tot 200m2. In geval van sloop van de bestaande woning en heropbouw op gewijzigde plaats dient er een minimale afstand van 4m ten opzichte van de perceelsgrenzen bewaard blijven. Er kan nog een bijgebouw worden opgericht van 40m2.
Daardoor is deze eigendom bijzonder geschikt voor bv. kangoeroewonen.
Voor meer info bel 050/70.35.34 (Jolien/Louise)
Lees meer Verberg
