Nieuwbouw koppelwoning te Oedelem in rustige woonwijk
Vraagprijs
Dé perfecte locatie:
Oedelem is een bosrijke deelgemeente van Beernem en uiterst interessant gelegen voor mensen die rust belangrijk vinden maar toch nabij de rand van Brugge willen wonen.
Deze woning wordt gebouwd volgens de woonwensen en in samenspraak met de koper en komt bovendien in aanmerking voor een open bebouwing!
Bijzonderheden:
Deze type woning is erg in trek bij een investeerder omdat deze type woningen zeer goed in de verhuurmarkt liggen en dus vlot verhuurbaar zijn.
Tevens is deze woning ook zeer geschikt voor een koper die er zelf wilt gaan wonen, want deze woning vinkt veel woonwensen af.
+ gunstige zuid oriëntatie
+ keuzevrijheid in afwerking met kwalitatieve materialen
+ 3 slaapkamers
+ energiezuinig = je bent voor alle komende jaren op je gemak met de energie normering.
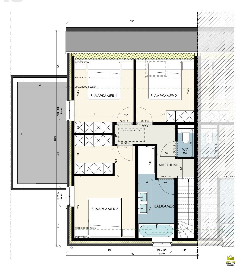
Indeling:
Inkomhal met gastentoilet. Hoek voor speelkamer of bureau, woonkamer en open keuken meten samen maar liefst 53 m2 en zijn gericht naar de zuid gerichte tuin. De ramen zijn groot, tot op de grond en brengen daardoor veel natuurlijk ... daglicht binnen. Naast de keuken vinden we de wasplaats/berging onder de trap. De slaapkamers bereiken we vanuit de inkomhal. Er zijn er 3 en meten respectievelijk 10 m2, 10m2 en 17m2. In de grootste kamer kan je zelfs een dressing voorzien. De badkamer is ingericht met een ligbad, een dubbele lavabo en een inloopdouche. Het toilet is bovendien apart. Er is nog een valluik naar de bergzolder.
Prijs:
Deze woning wordt verkocht onder het BTW stelsel van 21%.
De prijs die vermeld wordt moet verhoogd worden met extra kosten (registratie op de grondwaarde, btw op de constructiewaarde, de notariskosten, aansluitingskosten, ..)
Merk zeker op:
+ De aanneming en onderaannemingen zijn zorgvuldig gekozen door de bouwheer, allemaal vakmensen vanuit de streek, dat zorgt voor een persoonlijke aanpak en vakmanschap in elk detail.
Technieken:
+ Vloerverwarming beneden én boven (lucht water warmtepomp)
+ E-peil van E30
+ ventilatiesysteem D
Extra'tjes:
Er wordt een regenwaterput van 10.000 L voorzien.
Er kan een carport bij gekocht worden
Wens je meer info of een persoonlijk gesprek?
Bel ons op 050703435 (Jolien of Louise)
Lees meer Verberg
Oedelem is een bosrijke deelgemeente van Beernem en uiterst interessant gelegen voor mensen die rust belangrijk vinden maar toch nabij de rand van Brugge willen wonen.
Deze woning wordt gebouwd volgens de woonwensen en in samenspraak met de koper en komt bovendien in aanmerking voor een open bebouwing!
Bijzonderheden:
Deze type woning is erg in trek bij een investeerder omdat deze type woningen zeer goed in de verhuurmarkt liggen en dus vlot verhuurbaar zijn.
Tevens is deze woning ook zeer geschikt voor een koper die er zelf wilt gaan wonen, want deze woning vinkt veel woonwensen af.
+ gunstige zuid oriëntatie
+ keuzevrijheid in afwerking met kwalitatieve materialen
+ 3 slaapkamers
+ energiezuinig = je bent voor alle komende jaren op je gemak met de energie normering.
Indeling:
Inkomhal met gastentoilet. Hoek voor speelkamer of bureau, woonkamer en open keuken meten samen maar liefst 53 m2 en zijn gericht naar de zuid gerichte tuin. De ramen zijn groot, tot op de grond en brengen daardoor veel natuurlijk ... daglicht binnen. Naast de keuken vinden we de wasplaats/berging onder de trap. De slaapkamers bereiken we vanuit de inkomhal. Er zijn er 3 en meten respectievelijk 10 m2, 10m2 en 17m2. In de grootste kamer kan je zelfs een dressing voorzien. De badkamer is ingericht met een ligbad, een dubbele lavabo en een inloopdouche. Het toilet is bovendien apart. Er is nog een valluik naar de bergzolder.
Prijs:
Deze woning wordt verkocht onder het BTW stelsel van 21%.
De prijs die vermeld wordt moet verhoogd worden met extra kosten (registratie op de grondwaarde, btw op de constructiewaarde, de notariskosten, aansluitingskosten, ..)
Merk zeker op:
+ De aanneming en onderaannemingen zijn zorgvuldig gekozen door de bouwheer, allemaal vakmensen vanuit de streek, dat zorgt voor een persoonlijke aanpak en vakmanschap in elk detail.
Technieken:
+ Vloerverwarming beneden én boven (lucht water warmtepomp)
+ E-peil van E30
+ ventilatiesysteem D
Extra'tjes:
Er wordt een regenwaterput van 10.000 L voorzien.
Er kan een carport bij gekocht worden
Wens je meer info of een persoonlijk gesprek?
Bel ons op 050703435 (Jolien of Louise)
Lees meer Verberg
